МЗ Урал

Завод металлоформ
№ 1 в России

Адрес в Набережных Челнах:
Хлебный проезд, 30

8 (800) 333-07-15
Оставить заявку

Оставьте заявку

Специально для Вас мы подготовим выгодные цены, условия и сроки поставки

Меню
МЗ Урал
  • О заводе
  • Продукция
    • Металлоформы для производства ЖБИ
    • Оборудование для производства ЖБИ
    • Технологические линии для производства ЖБИ
    • Бетонные заводы
    • Оборудование для производства пенобетона
    • Оборудование для производства полистиролбетона
    • Оборудование для производства сухих смесей
  • Услуги
  • Цены
  • Лизинг
  • Новости
  • Статьи
  • Контакты
12ДД-400-0,93(0,81)-0,61БП
ЛСу-10
12ДД-400-0,85(0,81)-0,61БПк
ЛС17м
3ПБ13
2УТК-1020-1-2
Металлоформа КС 15.9
Металлоформа МПЛ-1.5
ГлавнаяОборудование для производства ЖБИБетоноукладчик Бетоноукладчик

Бетоноукладчик

Растариватель
Растраиватель
Растариватель
Растариватель
Растраиватель
Увеличить
Серии, ГОСТы, ТУ для ЖБИ
Серии, ГОСТы, ТУ для ЖБИ
Выгодный лизинг от 6,9%
Выгодный лизинг
Доставка по РФ и СНГ
Доставка по РФ и СНГ
Гарантия 1 год
Гарантия 1 год
Стоимость:
по запросу

Оставьте заявку

Специально для Вас мы подготовим выгодные цены, условия и сроки поставки

  • Базовая комплектация
  • Описание и особенности
  • Схема и характеристики
  • Оборудование для производства бетона
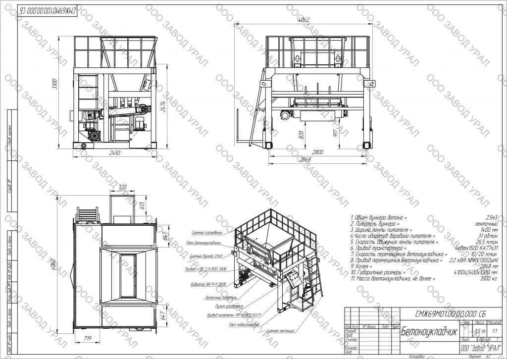
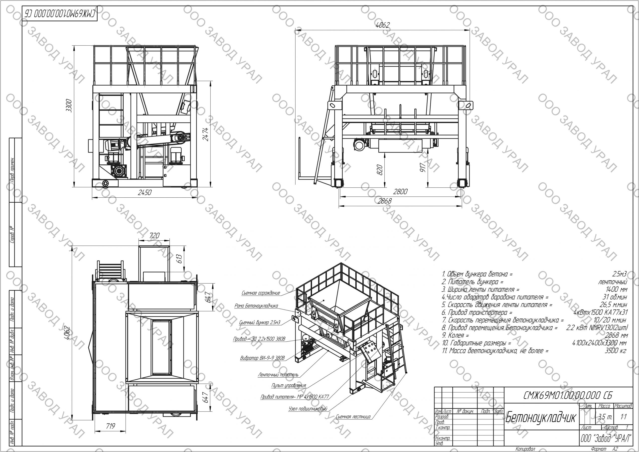
Базовая комплектация

Длинна – 4100мм
Ширина – 2400мм
Высота – 3300мм

Рама – труба 180х140мм

Масса – 3500кг

Обьем бункера бетона = 2.5м3
Питатель бункера = ленточный
Ширина ленты питателя = 1400 мм
Число оборотов барабана питателя = 31 об.мин
Скорость движения ленты питателя = 26,5 м.мин
Привод транспортера = 4кВтх1500 КА77х31
Скорость перемещения бетоноукладчика = 10/20 м.мин
Привод перемещения Бетоноукладчика = 2.2 кВт NMRV130(2шт)
Колея = 2868 мм

 

Описание и особенности

Бетонораздатчик предназначен для подачи и распределения бетонной смеси по металлоформе ПК. Данная машина обеспечивает равномерное распределения бетона по форме, за счет открывание шиберного затвора пневмоцилиндром CAMOZZI, который управляется с пульта оператором. Бетонораздатчик передвигается по рельсам с помощью электропривода, на определенных скоростях, которые также обеспечивают равномерное распределение бетонной смеси в металлоформу. На передвижение по рельсам бетоноукладчика, имеется специальный редуктор с подтормаживанием, плавной стопа без рывков. На бункере бетоноукладчика установлен вибратор свободорушения бетона из затвора.

Завод Урал реализует оборудование с различными параметрами. Толщина, масса и габаритные размеры устанавливаются ГОСТами. Обечайкам приписываются соответствующие названия. Они состоят из типа оборудования и его характеристик.

Завод Урал также изготавливает ЖБИ формы по индивидуальным параметрам заказчика. Стандартное оборудование не всегда подходит для поставленных целей. Наши профессионалы помогут составить чертежи под конкретные задачи и изготовят оборудование в короткие сроки.

Высокое качество, проверенное временем, вот что предлагает завод Урал. А положительные отзывы партнеров подтверждают его из года в год.

Схема и характеристики

Длинна - 4100мм
Ширина - 2400мм
Высота - 3300мм

Рама - труба 180х140мм

Масса - 3500кг

Обьем бункера бетона = 2.5м3
Питатель бункера = ленточный
Ширина ленты питателя = 1400 мм
Число оборотов барабана питателя = 31 об.мин
Скорость движения ленты питателя = 26,5 м.мин
Привод транспортера = 4кВтх1500 КА77х31
Скорость перемещения бетоноукладчика = 10/20 м.мин
Привод перемещения Бетоноукладчика = 2.2 кВт NMRV130(2шт)
Колея = 2868 мм

Чертеж Бетонораздатчика 2

Оборудование для производства бетона
Урал-Компакт 45

Бетонные заводы УРАЛ КОМПАКТ

Урал Лента 54

Бетонные заводы УРАЛ ЛЕНТА

Урал Скип 60

Бетонные заводы УРАЛ СКИП

Завод Урал
Завод металлоформ № 1 в России
Создание и продвижение сайта - Студия Бобрик
Наша продукция
  • Металлоформы для производства ЖБИ
  • Технологические линии для производства ЖБИ
  • Оборудование для производства ЖБИ
  • Бетонные заводы
  • Оборудование для производства пенобетона
  • Оборудование для производства полистиролбетона
  • Оборудование для производства сухих смесей
Информация
  • О заводе
  • Продукция
  • Цены
  • Лизинг
  • Новости
  • Контакты
8 (800) 333-07-15
+7 922 301-86-81

Набережные Челны, Хлебный проезд, 30

пн-пт: 9:00 - 18:00 | сб-вс: вых.

Оставить заявку
kz-zavod-info

Купить металлоформы Завода Урал в Республике Казахстан

2010 - 2025 ООО «Завод УРАЛ», г. Набережные Челны
Политика конфиденциальности
закрыть
Начните вводить название продукции, которую хотите найти.
  • Меню
  • Категории
  • Металлоформы для производства ЖБИ
    • Гражданское строительство
      • ЛС
      • ЛМ
      • ЛМП
      • ЛП
      • Перемычки ПБ
      • Сваи “С”
      • ФБС
      • ФБС Универсальная
      • Форма Карнизов
      • Форма плит перекрытия ПК
      • Форма Фундамент ленточный “ФЛ”
    • Дорожное строительство
      • Дорожные плиты ПАГ, ПДН
        • Дорожные плиты “П” (ГОСТ 21924.2-84, ГОСТ 21924.1-84)
        • Дорожные плиты “ПД” (Серия 3.503-17; Серия 3.503.1-93)
        • Металлоформа ПАГ
        • Металлоформа ПДН
      • Форма Бордюров БР
      • Формы Нью Джерси
    • Инженерные коммуникации
      • ККС
      • Кольца колодцев
      • Лоток Б “Серия 3.503.1-60”
      • Лоток Л
      • Лоток ЛК
      • МПЛ
      • МШЛ
      • Форма БЛ
      • Форма ГБ
      • Тетраподы
      • Форма ЗКП
      • Форма Стойка бетонная Серия 3.501.1-159
      • Формы ЗК
      • Фундаментный стакан
      • Ригель Серия 3.407-115
    • Промышленное строительство
      • Плиты покрытия ребристые (ГОСТ 27215-87)
      • Утяжелители бетонные
      • Формы ПРГ
      • Ригели опирания
    • Электросетевое строительство
      • Форма СВ (опоры освещения)
      • Форма приставка “ПТ”
      • Унифицированная стойка УСО
      • Плита навесная
      • Фундаменты опор ЛЭП серии Ф (СЕРИЯ 3.407-115)
  • Оборудование для производства ЖБИ
    • Бадьи для бетона
    • Бетоноукладчик
    • Виброрама
    • Кантователь
    • Пригрузочная плита
    • Пуансонная машина
    • Вибротумбы
    • Передаточная тележка
  • Технологические линии для производства ЖБИ
  • Бетонные заводы
  • Оборудование для производства пенобетона
  • Оборудование для производства полистиролбетона
  • Оборудование для производства сухих смесей
  • О заводе
  • Продукция
    • Металлоформы для производства ЖБИ
    • Оборудование для производства ЖБИ
    • Технологические линии для производства ЖБИ
    • Бетонные заводы
    • Оборудование для производства пенобетона
    • Оборудование для производства полистиролбетона
    • Оборудование для производства сухих смесей
  • Услуги
  • Цены
  • Лизинг
  • Новости
  • Статьи
  • Контакты
Scroll To Top